Space
Vijayawada
About the Project
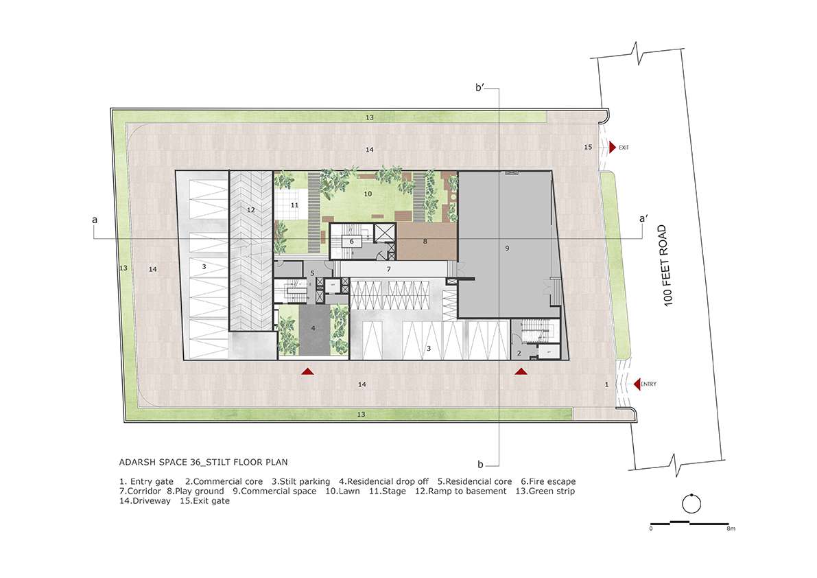
| Category : Residence | Location : 100 Feet road, Vijayawada | |
| Year : 2020 | Status : On-going | Area : 85,000sft (8 floors) |
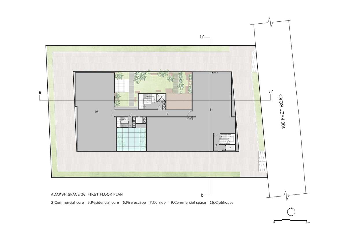
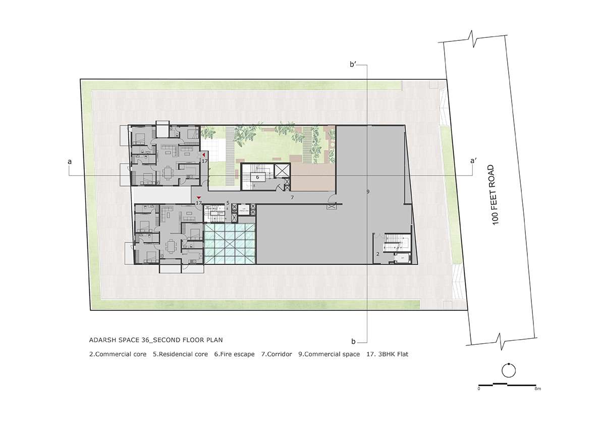
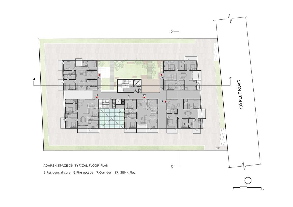
Space 36 is an eight floors residential complex with commercial space included in the front of the compound. This structure includes 24 flats, a clubhouse and 4 floors of commercial space. This project is designed to encourage green spaces, visual axis and connectivity. Unlike every typical residential complex, dedicated spaces are designed for entertainment, rejuvenation and play. The individual flats are designed to allow maximum sunlight and cross ventilation along with beautiful views from every balcony.











