Salem Childcare
Tenneru
About the Project
| Category : Hospitality | Location : Tenneru, Vijayawada | |
| Year : 2019 | Status : On-going | Area : 18,500sft (G+1) |
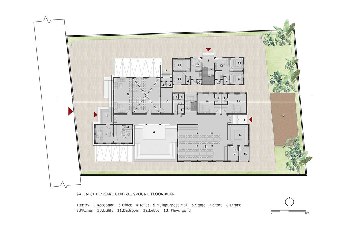
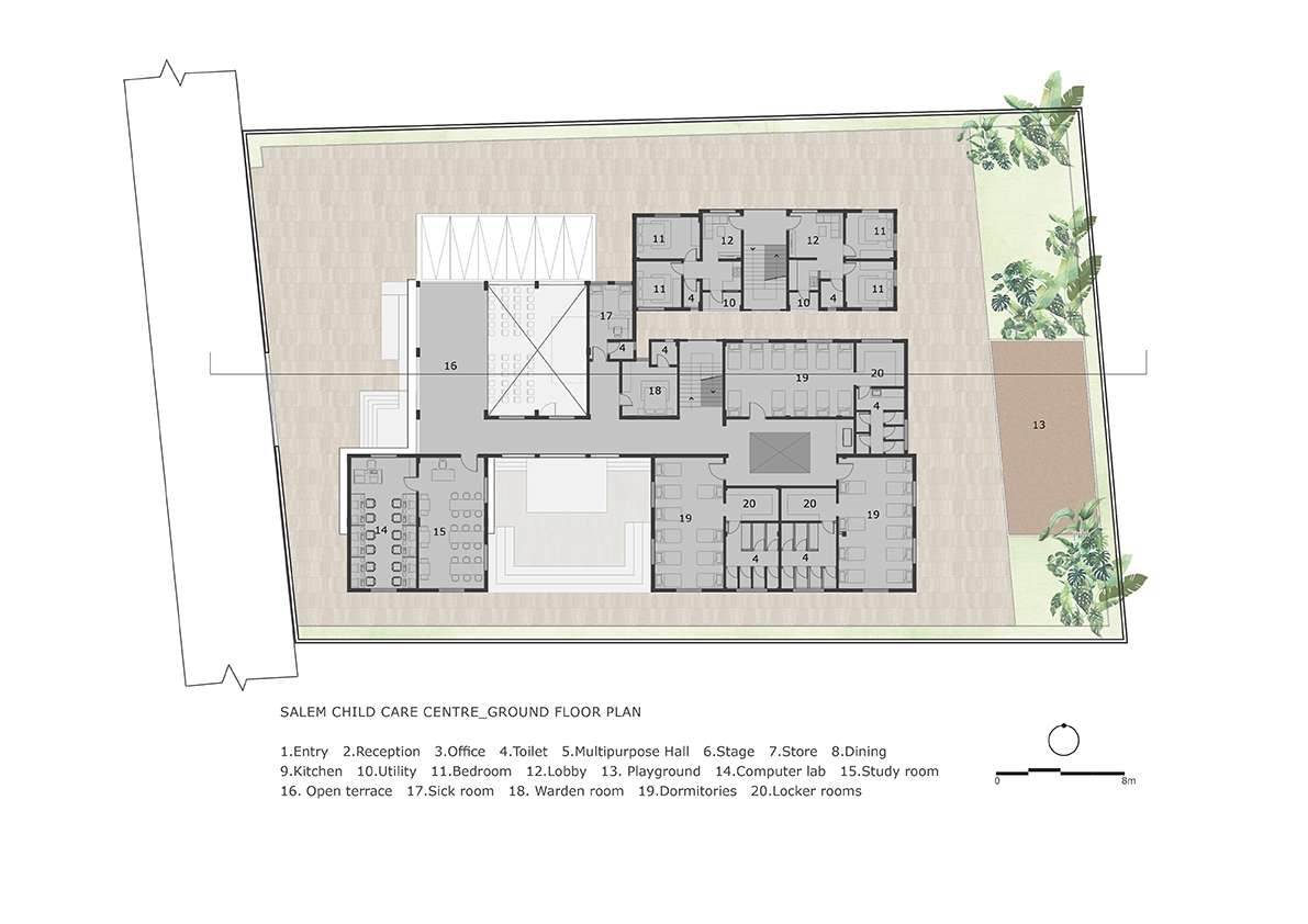
Salem childcare centre is established as a part of childcare service by SALEM SOCIAL SERVICE SOCIETY. This two floor structure is built to shelter around 120 children. The building includes dormitories, gatherings halls, dining room, computer and activity labs and also housing quarters for the staff. The compound also holds a playground and a green lawn for the children to rejoice in.








